Gharplanner.com
has successfully completed various residential house designs. Here is on
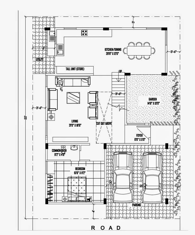
of the latest Independent House plan completed recently. This Independent house
plan is of 50x50 sq ft plot size, and having 3 Bedroom with two attach
toilet and dress, 1 common toilet at ground floor, a big kitchen with
dining area and a big hall on each floor. Stairs are planned internally. This Independent
house plans consist of 1 pooja cabinet and washing area with kitchen.
For any inquiry you can contact us at
For any inquiry you can contact us at
Team GharPlanner.com
=============================
Emai: info@gharplanner.com, support@gharplanner.com
Contact: +91-9873357239, 9650121782
Office: 401, Plot No-22, Pooja Complex,
Veershaverkar Block, Laxmi Nagar-110092
New Delhi
website: www.gharplanner.com



.jpg)










